Saltar al contenido principal

Configuración de cookies

Utilizamos cookies para asegurar las funcionalidades básicas del sitio web y para mejorar tu experiencia en línea. Puedes configurar y aceptar el uso de las cookies, y modificar tus opciones de consentimiento en cualquier momento.

Esenciales

Preferencias

Analíticas y estadísticas

Marketing

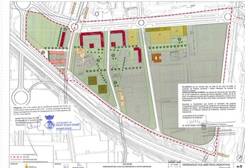
Parc subsector Raval de Les Begudes

Avatar: Alex De La Hoz Alex De La Hoz

Fer un parc al subsector Raval a la zona de les Begudes al costat del parking Muxu i la barriada de cases de les Begudes, es una zona plena de brutícia per on passeja molta gent, al seu diu amb el pla urbanístic del Fc Barcelona ja es va planificar, però no s'ha pogut executar per falta de diners i enteniment de la barriada de les Begudes amb l'ajuntament, es una zona on podrien fer un parc , zona verda o inclús parking, per tots els que estem al barri.

#pressupostosparticipatiusSJD

Confirmar

Por favor, inicia la sesión

La contraseña es demasiado corta.

Compartir