Vés al contingut principal

Configuració de les galetes

Fem servir galetes per assegurar les funcionalitats bàsiques del lloc web i per a millorar la teva experiència en línia. Pots configurar i acceptar l'ús de galetes, i modificar les teves opcions de consentiment en qualsevol moment.

Essencials

Preferències

Analítiques i estadístiques

Màrqueting

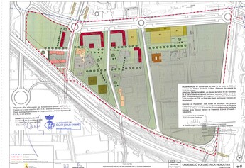
Parc subsector Raval de Les Begudes

Avatar: Alex De La Hoz Alex De La Hoz

Fer un parc al subsector Raval a la zona de les Begudes al costat del parking Muxu i la barriada de cases de les Begudes, es una zona plena de brutícia per on passeja molta gent, al seu diu amb el pla urbanístic del Fc Barcelona ja es va planificar, però no s'ha pogut executar per falta de diners i enteniment de la barriada de les Begudes amb l'ajuntament, es una zona on podrien fer un parc , zona verda o inclús parking, per tots els que estem al barri.

#pressupostosparticipatiusSJD

Confirmar

Si us plau, inicia la sessió

La contrasenya és massa curta.

Compartir